![]() |
| 企业名称: | 金强(福建)建材科技股份有限公司 | ||||||||||||||||||||||||||||||||||||||||||||||||||||||||||||||
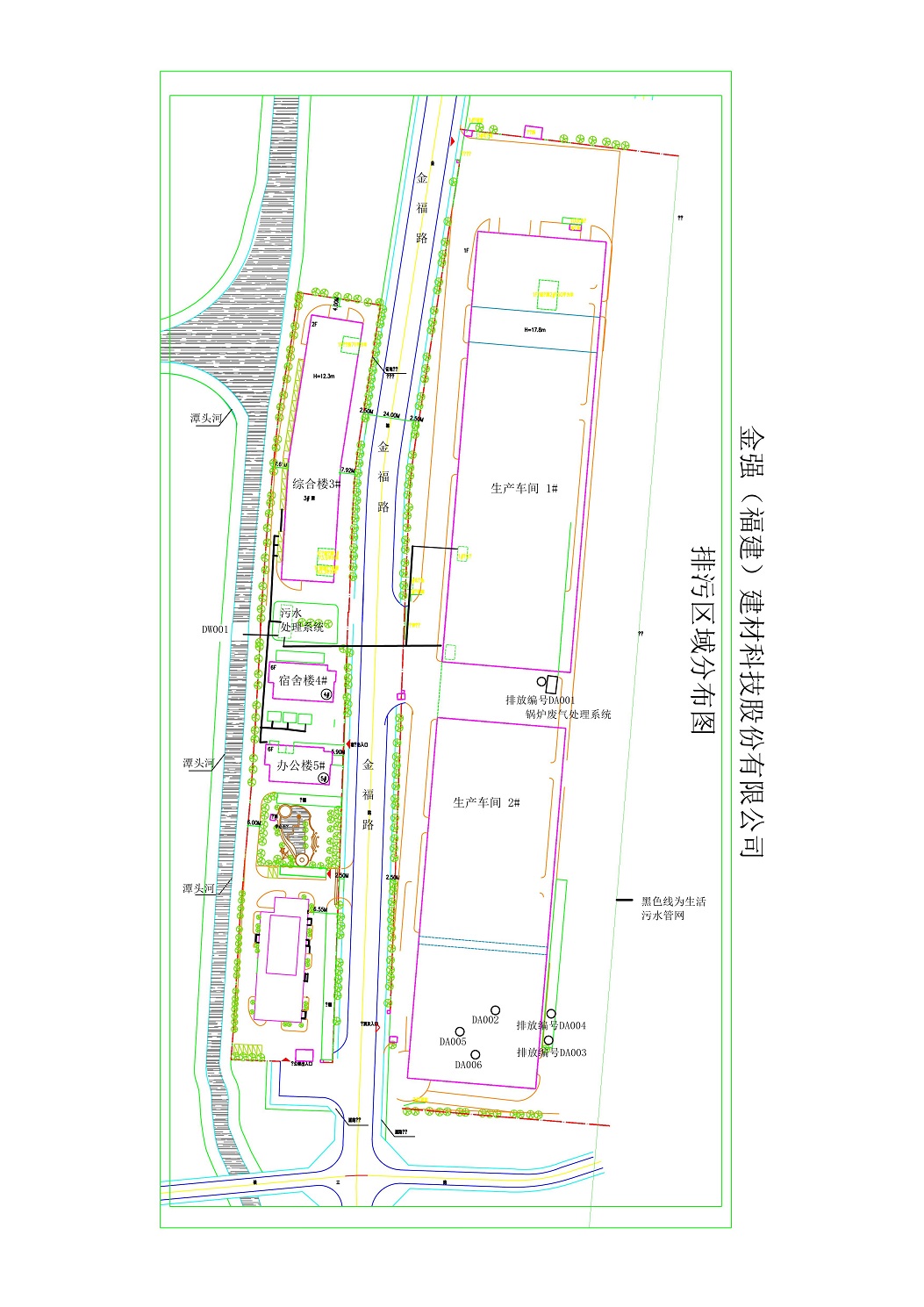
| 企业地址: | 福州市长乐市潭头镇金福路二刘村 | ||||||||||||||||||||||||||||||||||||||||||||||||||||||||||||||
| 污染源类型: |
|
||||||||||||||||||||||||||||||||||||||||||||||||||||||||||||||
| 是否国控: |
|
||||||||||||||||||||||||||||||||||||||||||||||||||||||||||||||
| 法人代表: | 刘金铃 | 组织机构代码: | 91350000563390997K | ||||||||||||||||||||||||||||||||||||||||||||||||||||||||||||
| 环保联系人: | 张琼英 | 联系电话: | 13805047797 | ||||||||||||||||||||||||||||||||||||||||||||||||||||||||||||
| 主要产品: | 复合纤维硅酸盐板材 | ||||||||||||||||||||||||||||||||||||||||||||||||||||||||||||||
| 生产规模: |
|
生产周期: | 5-7天 | ||||||||||||||||||||||||||||||||||||||||||||||||||||||||||||
| 所属行业: |
轻质建筑材料制造 |
||||||||||||||||||||||||||||||||||||||||||||||||||||||||||||||
| 主要生产工艺: | 业务订单--原料采购---制浆---制板---预养--蒸养---脱模---切割---包装---装车---发货 | ||||||||||||||||||||||||||||||||||||||||||||||||||||||||||||||
|
排放主要及特征 污染物名称: |
废水:COD、氨氮; 废气:二氧化硫、烟尘; | ||||||||||||||||||||||||||||||||||||||||||||||||||||||||||||||
|
厂区平面图和 排放口分布情况: |
|||||||||||||||||||||||||||||||||||||||||||||||||||||||||||||||
| 污染物排放情况: |
|
||||||||||||||||||||||||||||||||||||||||||||||||||||||||||||||
|
污染防治设施建设 和运行情况: |
1、我公司建有1套生活污水处理设施,采用A/O工艺,设计处理能力:40吨/日;2、锅炉采用天然气清洁能源;3、配备5套布袋除尘器,以上设施均运行正常。 | ||||||||||||||||||||||||||||||||||||||||||||||||||||||||||||||
|
建设项目环境影响评及 |
|||||||||||||||||||||||||||||||||||||||||||||||||||||||||||||||
|
突发环境事件应急预案: |
是 |
||||||||||||||||||||||||||||||||||||||||||||||||||||||||||||||
|
环境自行监测方案: |
否 |
||||||||||||||||||||||||||||||||||||||||||||||||||||||||||||||